Okno Przesuwne HST Salamander EvolutionDrive 82

Doskonały Wybór dla Nowoczesnego Budownictwa

Wybór odpowiednich okien do domu to jedna z najważniejszych decyzji, które wpływają na komfort mieszkania oraz efektywność energetyczną budynku. System okien przesuwnych HST Salamander EvolutionDrive 82 to rozwiązanie, które spełnia wszystkie wymagania nowoczesnego budownictwa, oferując jednocześnie elegancki wygląd oraz znakomite parametry techniczne.

Nowoczesność i funkcjonalność w jednym

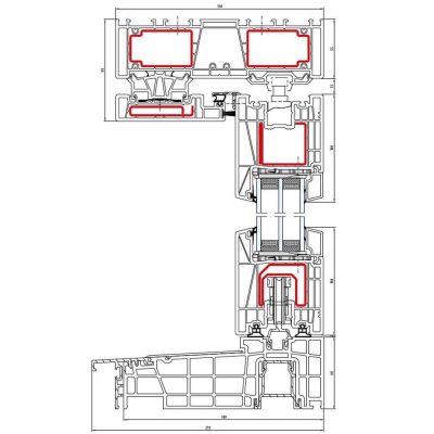
HST Salamander EvolutionDrive 82 to system unoszono-przesuwny, który został zaprojektowany z myślą o tworzeniu dużych, przeszklonych powierzchni. Dzięki możliwości produkcji okien o maksymalnych wymiarach skrzydła ruchomego do 3000 x 2500 mm (szer. x wys.), pozwala on na stworzenie jasnych i przestronnych wnętrz, zapewniając jednocześnie doskonałe właściwości izolacyjne. To idealne rozwiązanie dla tych, którzy chcą połączyć estetykę z funkcjonalnością.

Niski próg dla komfortu użytkowania

Jednym z kluczowych atutów systemu HST Salamander EvolutionDrive 82 jest niski próg, który znacząco podnosi komfort użytkowania. Jest to szczególnie istotne w przypadku budownictwa bez barier, które wymaga płaskich przejść – idealnych do zastosowania w szpitalach, placówkach publicznych czy domach, gdzie mieszka osoba z ograniczoną mobilnością. Niski próg nie tylko ułatwia poruszanie się, ale także nadaje wnętrzom nowoczesny, minimalistyczny wygląd.

Energooszczędność na najwyższym poziomie

W dobie rosnącej świadomości ekologicznej, coraz więcej osób zwraca uwagę na energooszczędność stosowanych rozwiązań. HST Salamander EvolutionDrive 82 wyróżnia się doskonałymi parametrami cieplnymi, które pozwalają na zachowanie optymalnej temperatury wewnątrz budynku, nawet przy dużych przeszklonych powierzchniach. System ten może być wyposażony w pakiet szybowy o szerokości 52 mm, co zapewnia wyjątkową izolacyjność cieplną i akustyczną. Jest to rozwiązanie, które rekomendujemy do budownictwa energooszczędnego oraz obiektów poddawanych termomodernizacji.

Bezpieczeństwo i trwałość

Dzięki możliwości zastosowania okuć i szklenia antywłamaniowego do klasy RC2, okna HST Salamander EvolutionDrive 82 gwarantują wysoki poziom bezpieczeństwa. Jest to szczególnie ważne w przypadku budynków jednorodzinnych oraz wszędzie tam, gdzie istotne jest zabezpieczenie przed nieproszonymi gośćmi. Dodatkowo, system ten cechuje się wyjątkową trwałością oraz odpornością na czynniki zewnętrzne, co sprawia, że jest to inwestycja na lata.